(724) 814-4806 Cell
Sign Up Login
Refine Search

545 Silver Star Boulevard , Indian Trail, NC 28079

$399,160
  • 545 Silver Star Boulevard , Indian Trail, NC 28079 Main Photo

33 Total Photos [Click to View All]

New to the Market Active
BEDS3 BATHS3 full 1 partial SQUARE FEET1,952 MLS#4373664
STATUSActive PROPERTY TYPEResidential - Townhouse SUBDIVISIONIndian Trail Townhomes

Property Description

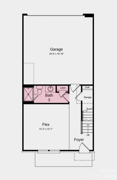
What's Special: No Rear Neighbor | Flex Room | 3 Full Baths | 3-Story. New Construction - May Completion! Built by America's Most Trusted Home Builder. Welcome to the Breckenridge II at 545 Silver Star Boulevard in Indian Trail Townhomes! This beautifully designed three-story new construction townhome offers a flexible space and an easy, welcoming flow. The ground floor features a generous flex space with a shared full bath, ideal for guests, a home office, or a cozy retreat, with access from both the two-car garage and an inviting foyer. Upstairs, the main living level opens into a bright open-concept layout with a spacious great room that leads to a charming deck, alongside a warm kitchen with a large center island and a sunny casual dining area with a nearby powder room. All three bedrooms are thoughtfully placed on the third floor, including a relaxing primary suite, plus a conveniently located laundry room and secondary bath. The primary suite feels like a private escape with dual sink vanities, a beautifully finished shower, and a large walk-in closet. Set within a friendly Indian Trail community, residents enjoy a small-town atmosphere with close proximity to local parks, shopping, dining, and everyday conveniences. Welcome to Indian Trail Townhomes, where comfort meets convenience. Enjoy easy access to US-74 and I-485, top-rated Union County schools, and endless shopping and dining in Indian Trail and Matthews. Parks like Chestnut Square and Colonel Beatty are minutes away, with major employers, Atrium Health Union West, and popular retail centers all close by. Additional Highlights Include: upgraded shower with ledge in the primary bathroom and full bathroom in place of a half bathroom on the lower floor. Photos are for representative purposes only. MLS#4373664

545 Silver Star Boulevard | MLS# 4373664

This townhouse located at 545 Silver Star Boulevard , Indian Trail, NC 28079 is currently listed for sale with an asking price of $399,160. This property was built in 2026 and has 3 bedrooms and 3 full and 1 partial baths with 1952 sq. ft. Silver Star Boulevard is located in the Indian Trail Townhomes subdivision. Search Indian Trail Townhomes real estate on tracyp.lakenormanrealty.com today.

Property Features

Property Type: Residential - Townhouse
Garage: 2 car attached
Heating: Natural Gas
Home Style: Traditional
Lot Size: 0.03 Acres
Roof Type: Architectural Shingle
Year Built: 2026

Amenities

Entrance Foyer
Kitchen Island
Open Floorplan
Pantry
Split Bedroom
Storage
Walk-In Closet(s)

Feature Descriptions

Appliances: Dishwasher, Disposal, Gas Range, Microwave, Oven
Community Features: Sidewalks, Street Lights
Exterior: Brick Partial, Fiber Cement, Metal
Flooring: Carpet, Laminate, Tile
Foundation: Slab
HOA Fee: $231.14/ Monthly
Horse Amenities: None
Laundry: Electric Dryer Hookup, Laundry Closet, Upper Level, Washer Hookup
Other Structures: None
Parcel#: 07105186
Parking: Driveway, Attached Garage, Garage Door Opener, Garage Faces Rear
Patio/Porch: Deck
Security: Carbon Monoxide Detector(s), Smoke Detector(s)
Sewer: Public Sewer
Utilities: Cable Available, Electricity Connected, Natural Gas, Wired Internet Available, Other - See Remarks
Water: City

Local Schools

High School: Sun Valley
Middle School: Sun Valley
Elementary School: Indian Trail

Listed By / Shown By

Listed By

Agency Name: Taylor Morrison of Carolinas Inc
Agency Contact: NONE

Shown By

Agent Name: Tracy Petrosky
Agent Phone: (724) 814-4806 Cell
Agency Title: Lake Norman Realty

IDX logo

Estimate Your Payment

Estimated Payment

$ 2,240.92 per month $2,124.50 Principal & Interest $0.00 Property Tax (data not provided by mls) $116.42 Homeowner's Insurance

Change Payment Information

%
years/fixed
yearly
yearly (est.)
(Payments are an estimate and may vary by lender)
Disclaimer: All information deemed reliable but not guaranteed. All properties are subject to prior sale, change or withdrawal. Neither listing broker(s) or information provider(s) shall be responsible for any typographical errors, misinformation, misprints and shall be held totally harmless. Listing(s) information is provided for consumers personal, non-commercial use and may not be used for any purpose other than to identify prospective properties consumers may be interested in purchasing. Information on this site was last updated 04/23/2026. The listing information on this page last changed on 04/23/2026. The data relating to real estate for sale on this website comes in part from the Internet Data Exchange program of Delta Media Group MLS (last updated Thu 04/23/2026 12:21:20 AM EST) or Canopy MLS (last updated Thu 04/23/2026 12:17:33 AM EST) or Triad MLS (last updated Wed 04/22/2026 11:40:13 PM EST). Real estate listings held by brokerage firms other than Lake Norman Realty may be marked with the Internet Data Exchange logo and detailed information about those properties will include the name of the listing broker(s) when required by the MLS. All rights reserved.

Based on information submitted to the MLS GRID. All data is obtained from various sources and may not have been verified by broker or MLS GRID. Supplied Open House Information is subject to change without notice. All information should be independently reviewed and verified for accuracy. Properties may or may not be listed by the office/agent presenting the information.” Displays of minimal information (e.g. “thumbnails”, text messages, “tweets,” etc., of two hundred (200) characters or less) are exempt from this requirement but only when linked directly to a display that includes all required disclosures. For audio delivery of listing content, all required disclosures must be subsequently delivered electronically to the registered consumer performing the property search or linked to through the devices application.

Listings courtesy of Canopy MLS as distributed by MLS GRID.

DMCA Notice:
The Digital Millennium Copyright Act of 1998, 17 U.S.C. § 512 (the “DMCA”) provides recourse for copyright owners who believe that material appearing on the Internet infringes their rights under U.S. copyright law. If you believe in good faith that any content or material made available in connection with our website or services infringes your copyright, you (or your agent) may send us a notice requesting that the content or material be removed, or access to it blocked. Notices must be sent in writing by email to DMCAnotice@MLSGrid.com. “The DMCA requires that your notice of alleged copyright infringement include the following information:
(1) description of the copyrighted work that is the subject of claimed infringement;
(2) description of the alleged infringing content and information sufficient to permit us to locate the content;
(3) contact information for you, including your address, telephone number and email address;
(4) a statement by you that you have a good faith belief that the content in the manner complained of is not authorized by the copyright owner, or its agent, or by the operation of any law;
(5) a statement by you, signed under penalty of perjury, that the information in the notification is accurate and that you have the authority to enforce the copyrights that are claimed to be infringed; and
(6) a physical or electronic signature of the copyright owner or a person authorized to act on the copyright owner’s behalf. Failure to include all of the above information may result in the delay of the processing of your complaint.

Privacy Policy / DMCA Notice / ADA Accessibility

Login to My Homefinder

Pixel